top of page
Rekonstrukce bytu
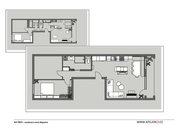
Panelový byt prošel celkovou rekonstrukcí včetně výměny dveří, podlahových krytin, vybourání umakartového jádra a instalací nových SDK podhledů v celé ploše bytu. Klienti si přáli čistý elegantní interiér s novou kuchyňskou linkou, prostorným jídelním koutem, velkou předsíní, dostatečným úložným prostorem a novou ložnicí. Dispozičně došlo k úpravě příček mezi kuchyní, obývákem a předsíní. Pro nábytek vyráběný na míru jsme zvolili kombinaci bílé barvy s medovou barvou dřeva a černými doplňky. Nová koupelna se sprch. koutem byla spojena s toaletou a obložena velkoformátovým mramorovým obkladem v teplé šedozlaté barvě. Čistotu interiéru umocňují bezobložkové dveře SAPELI.
Soukromý byt
Praha – Řepy
2021

bottom of page















