top of page
Rekonstrukce bytu s terasou
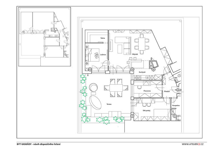
Byt 110 m2 prošel kompletní rekonstrukcí, která přinesla více otevřeného prostoru a lepší funkční propojení místností. Součástí úprav byla výměna oken a podlah, nové rozvody elektroinstalace i instalace klimatizace a inteligentního systému LUTRON pro komfortní ovládání domácnosti.
Interiér oživila žlutá kuchyňská linka v kombinaci s výraznými tapetami CASAMANCE a ložnice s praktickou šatnou v odstínech nachové. Do prostoru byly citlivě zakomponovány původní kusy nábytku a umělecká díla.
Velká terasa 46 m2 získala novou krytinu, zahradní úpravy, venkovní sprchu a nábytek z ratanu a teaku, celá plocha byla zastíněna pergolou s elektrickým posuvem LOCA.
Soukromý byt
Praha – Kaskády
2016

bottom of page









